Interior Design Living Room Plan Layout
Camila Farah
Find your living room s focal point.
Living room layouts and choosing the right living room furniture when it comes to the layout of your living room. Any designer will confirm that seating can be very specific to the interior you re designing for but there s no doubt that settling for a mix of sofas and chairs and experimenting with placement can create a polished layout. You ll love this gallery. This large living space is not only open plan it utilises the fire place as a focal point image credit.
With shift key rotation angle will downscaled to 5 canvas zoom in out x display debugging info 2d view shift move objects gently move objects p enable drawing mode s split selected wall. Use living spaces free 3d room planner to design your home. Neptune how you want to use the room will dictate what its focal point will be. Here s a small living room floor plan.
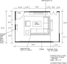
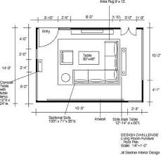
It consists of 1 sofa and two flanking armchairs all oriented toward a tv. Interior design living room layout plan the awesome photograph below is other parts of home interior design plans editorial which is categorized within home projects home interior design plans home projects and posted at january 7th 2015 03 37 56 am by admin. One of the trendy approaches in modern design is to elevate one of the zones. Design ideas for a contemporary open plan living room in london with white walls.
RELATED ARTICLE :
- how to apply tung oil to kitchen cabinets
- how many cabinets in a 10x10 kitchen
- how to build a kitchen island with ikea cabinets
The living room layout is usually dictated by where the tv is placed but. One sofa three tables and four chairs. Ahead we share a selection of our favorite living rooms featuring major seating arrangement inspiration. We cherry picked over 48 incredible open concept kitchen and living room floor plan photos for this stunning gallery.
There are many elegant and creative ways to separate or more precisely to signify the symbolic border between the kitchen and living room premises without actually creating different rooms with walls and doors. All interior design styles represented as well as wall colors sizes furniture styles and more. See how our pieces will look in your home with the easy to use room designer tool.
View Video For Interior Design Living Room Plan Layout

View Video Review
Source : pinterest.com



